Para venda

Apartamento Apartamento T2 na Sismaria – Leiria | Último Andar | Vista Panorâmica - Negociável

Resumo

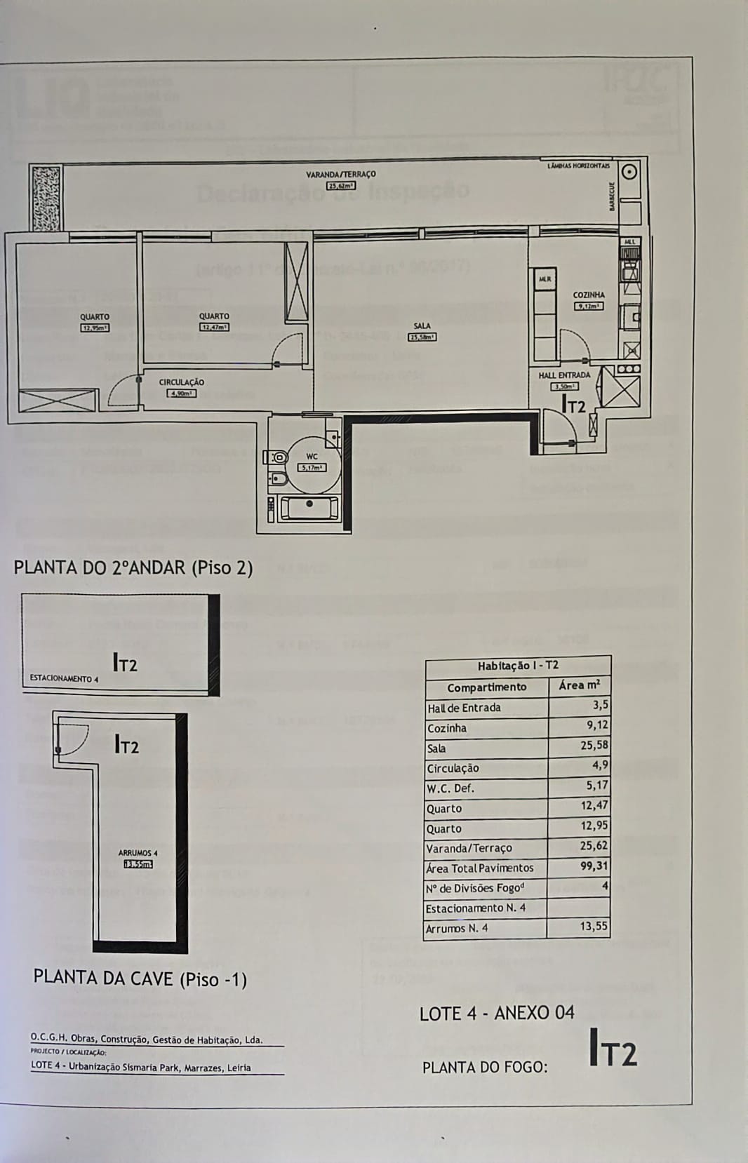
Descubra este magnífico apartamento T2 virado a poente, situado na tranquila e acolhedora zona da Sismaria. A sensivelmente 5 minutos de carro do centro de Leiria. Um verdadeiro refúgio urbano rodeado de espaços verdes, parque infantil e amplo estacionamento exterior.

Localizado no último andar de um prédio moderno com elevador, vídeo porteiro e painéis solares, este apartamento destaca-se pela luminosidade, conforto e uma vista panorâmica simplesmente apaixonante.

 Um ambiente que inspira

Ao entrar, é impossível ficar indiferente ao envidraçado que ilumina a cozinha e sala oferecendo um horizonte aberto sobre a região. Um cenário perfeito para apreciar o pôr do sol, beber um copo de vinho ao fim do dia ou simplesmente contemplar a chuva a cair nos dias mais frios, tudo no conforto do lar.

A varanda ampla é acessível tanto pela sala de estar/refeições como pela cozinha, criando um ambiente fluído e convidativo. Aqui poderá desfrutar de momentos relaxantes ou reunir amigos e família à volta de uma boa churrasqueira.

Distribuição inteligente e confortável

Cozinha equipada com: 
- Máquina de lavar louça Teka (encastrada);
- Máquina de lavar roupa (encastrada);
- Exaustor Teka;
- Micro-ondas e forno Zanussi.

Sala de estar/refeições com excelente luminosidade e acesso à varanda.
Quarto principal com acesso direto à varanda.
Quarto de hóspedes, perfeito também para escritório ou zona de trabalho.
Casa de banho moderna com base de duche.

Todos os espaços dispõem de radiadores, janelas de vidro duplo com oscilo-batente, focos de luz embutidos e preparação para calhas de cortinados.

Comodidades adicionais:

- Aquecimento central e aspiração central
- Lugar de garagem
- Arrecadação privativa
- Zona calma, segura e familiar

Um apartamento pensado para quem valoriza conforto, qualidade e bem-estar.

Se procura um T2 elegante, luminoso, com boa vista e excelente localização, este é o apartamento ideal para si.

- IMI: 192 €

- Condomínio: 28,30 €

 

Caso pretenda mais informações, ou visitar contacte-nos.
Esperamos por si!

Rekantos do Lis - Mediação Imobiliária, Lda.
Licença AMI: 6437.

Anúncio no Idealista

Certificado Energético: A

T2

101 m²

2 Quartos

1 Casas de Banho

1 Estacionamento

Construído em 2018

Características

  • Elevador
  • Varanda
  • Lugar de Garagem
Explorar Planta

Onde Estamos

Escritório: Rua do Municipio, Lote H, 1ºD 2410-137 Leiria

Fale connosco

Email: Este endereço de email está protegido contra piratas. Necessita ativar o JavaScript para o visualizar.

Telemóvel: +351 918 995 304
(chamada para a rede móvel nacional)

Fixo: +351 244 835 184
(chamada para a rede fixa nacional)

A sua privacidade é importante para nós!

Utilizamos cookies para melhorar a sua experiência no nosso site.
Ao aceitar, está a concordar com a nossa utilização de cookies. Para mais informações, consulte a nossa Política de Privacidade.